Запорная арматура
Содержание:
1. Определение.
2. Классификация.
3. Типы запорных элементов:
3.1 Кран;
3.1.1 Шаровый Кран
3.1.2 Конусный кран
3.2 Запорный клапан;
3.2.1 Сальниковая арматура
3.2.2 Сильфонная арматура
3.2.3 Мембранная арматура
3.3 Задвижка;
3.3.1 Виды задвижек
3.3.1.1 Клиновая задвижка
3.3.1.2 Жеский клин
3.3.1.3 Двухдисковый клин
3.3.1.4 Упругий клин
3.3.2 Паралельная задвижка
3.3.3 Шберная задвижка
3.3.4 Шланговая задвижка
3.3.5 Задвижка с выдвижным шпинделем
3.3.6 Задвижка с не выдвижным шпинделем
3.4 Дисковый затвор (Заслонка)
4 Разновидности арматуры по присоединению:
4.1 Фланцевое присоединение арматуры;
4.2 Арматура под приварку;
4.3 Резьбовая арматура;
4.3.1 Муфтовая арматура
4.3.2 Штуцерная арматура;
4.4 Цапковая арматура.
1. Определение
Запорная арматура вид трубопроводной арматуры, предназначенный для перекрытия потока среды. Она имеет наиболее широкое применение и составляет обычно около 80% от всего количества применяемых изделий. К запорной арматуре относят и пробно-спускную и контрольно-спускную арматуру, используемую для проверки уровня жидкой среды в ёмкостях, отбора проб, выпуска воздуха из верхних полостей, дренажа и т.д.
2. Классификация устройств может быть произведена по нескольким признакам:
- Область применения;
- Принципу управления и действия;
- типу запорного элемента;
- присоединению к трубопроводу.
Область применения:
1. Пароводяная;
2. Газовая;
3. Нефтяная;
4. Энергетическая;
5. Химическая;
6. Судовая;
7. Резервуарная.
По принципу управления и действия:
- Управляемая
- С ручным приводом
- С механическим приводом
- Электрическим приводом
- Пневматическим приводом
- Гидравлическим приводом
- Электромагнитным приводом
- Арматура под дистанционно расположенный привод (управляется механическим или ручным приводом, который устанавливается отдельно от арматуры и соединяется с ней передачей, состоящей из валов, подшипников, зубчатых колес или тросов)
- Автоматически действующая (автономная)
3. Типы запорных элементов.
К запорной арматуре, по признаку запирающего элемента, относят:
- Краны
- Клапаны
- Задвижки
- Заслонки (поворотные затворы)
3.1 Кран
Кран трубопроводный- тип трубопроводной арматуры, у которого запирающий или регулирующий элемент, имеющий форму тела вращения или его части, поворачивается вокруг собственной оси, произвольно расположенной по отношению к направлению потока рабочей среды. Краны по типу запорного элемента разделяются на шаровые, пробковые.
Краны могут представлять собой запорные, регулирующие или распределительные устройства, и предназначены для работы с газообразными и жидкими средами, в том числе вязкими и загрязнёнными, суспензиями, пульпами, шламами. Они используются на магистральных газопроводах и нефтепроводах, в системах городского газоснабжения, на резервуарах, котлах и в других областях.
Управляются краны вручную или с помощью механического привода: электрического, пневмо- и гидравлического. В шаровых кранах, установленных на магистральных газопроводах, используются также пневмогидравлические приводы, в которых на поршень в цилиндре воздействует жидкость (масло) под давлением газа, отбираемого из трубопровода, что обеспечивает плавное и безударное срабатывание привода.
По направлению потока краны могут быть проходными, то есть направление потока не меняется, угловыми, то есть направление потока меняется на 90° и трёхходовыми, то есть иметь один выходной и два входных патрубка, что позволяет смешивать потоки сред с различными параметрами. Это свойство трёхходовых кранов используется в сантехнике в устройстве под названием смеситель.

Рисунок.1. Схема Проходного шарового крана.

Рисунок 2. Схема углового крана.

Рисунок 3. Схема трехходового крана.
Главные различия в конструкции кранов заключаются в форме затвора, он может быть в виде шара, конуса или цилиндра. Современным и прогрессивным представителем кранов является шаровой кран, традиционным, и в силу этого всё еще часто использующимся, несмотря на существенные недостатки конструкции, - конусный кран. Цилиндрические краны имеют крайне ограниченное применение.
Устройство
Основными частями крана являются корпус и затвор в виде шара, конуса или цилиндра. Для прохода среды в затворе предусмотрено сквозное отверстие. Управление краном осуществляется путём поворота пробки. При повороте на 90° осуществляется полное перекрытие хода среды, при повороте на меньшие углы - частичное. В промежуточном положении, в зависимости от конструкции крана, среда может направляться либо в обоих направлениях, либо полностью перекрываться.
Различия в конструкциях
3.1.1 Шаровой кран
Это разновидность крана, запирающий или регулирующий элемент которого имеет сферическую форму. Подвижным элементом таких кранов служит пробка сферической формы - шар, по оси которой выполнено сквозное круглое отверстие для прохода рабочей среды. В проходных кранах для полного закрытия или открытия прохода достаточно повернуть шар на 90°. Диаметр отверстия чаще всего соответствует внутреннему диаметру трубопровода, на который устанавливается кран, называющийся в этом случае полно проходным. Гидравлические потери при проходе рабочей среды через полностью открытый кран весьма малы, практически такие же, как при проходе среды через трубу, равную по длине корпусу крана, что в разы меньше, чем в задвижках и клапанах. Это ценное качество сделало шаровые краны основным запорным устройством на линейной части магистральных газопроводов. Однако для уменьшения габаритов и крутящих моментов, необходимых для управления арматурой, иногда применяются суженные краны. Кроме общих для кранов, шаровые имеют ряд специфических достоинств, среди которых:
- весьма малые гидравлические потери;
- высокая и надёжная герметичность;
- простая форма проточной части и отсутствие в ней застойных зон;
- удобное управление.
Сёдла в корпусе выполняются в виде колец из различных видов пластмасс (в основном фторопласта), что обеспечивает надёжную герметичность, лёгкость и плавность поворота шаровой пробки, но ограничивают применения таких кранов для сред с температурой не более 200°C. Также полимерные седла больше подвержены износу из за постоянного взаимодействия с кромкой отверстия в шаре.
Шаровые краны имеют большое разнообразие исполнений, но основные их различия - в конструкциях запорных органов: с плавающим шаром (для небольших диаметров) и с шаром в опорах.

Рисунок 4. Шаровый кран.
3.1.2 Конусный кран (игольчатый).
Это разновидность крана, запирающий или регулирующий элемент которого имеет форму конуса.
Сквозное отверстие в пробке, которое, в отличие от шаровых кранов, как правило, не круглое, а трапециевидное, обеспечивает проход среды при открытии такого крана. Сёдлами является внутренняя поверхность корпуса. Таким образом, уплотнительными поверхностями запорного органа являются конические поверхности - наружная пробки и внутренняя корпуса.
В конусных кранах обеспечиваются два весьма трудно сочетаемых требования - создать плотный и герметичный контакт между коническими поверхностями пары корпус—пробка и при этом обеспечить свободный плавный поворот пробки, не допуская её заклинивания и задирания уплотнительных поверхностей. Последнее требование диктует необходимость изготовления корпусов и пробок из материалов, обладающих хорошими антифрикционными качествами (латунь, бронза, чугун). Такие материалы ограничивают практическое применение конусных кранов давлением 1,6 МПа и диаметром 100 мм. Иногда конусные краны изготавливают также из углеродистой стали диаметром до 200 мм, но пробку в этих случаях делают из чугуна, либо применяют специальную систему смазки уплотнительных поверхностей.
Конусный кран весьма сложно изготовить и отрегулировать так, чтобы обеспечить какую-то стабильную величину усилия, необходимого для поворота пробки, поэтому они практически непригодны для использования с электро- или пневмо-приводами и управляются вручную.
Кроме вышеперечисленных, конусные краны имеют ряд других недостатков:
- для управления конусными кранами требуются большие крутящие моменты, что приводит к необходимости установки механического редуктора даже при небольших диаметрах крана ;
- уплотнительным поверхностям требуется тщательное обслуживание и смазка во избежание прикипания пробки к корпусу;
- притирка конической пробки к корпусу сложная процедура, от качества которой зависит надёжность и герметичность крана;
- неравномерный по высоте износ пробок, что приводит к снижению герметичности крана в процессе эксплуатации.
Конусные краны различаются по способу уплотнения на сальниковые и натяжные, и имеют ряд специфических конструкций:
- краны со смазкой - применяются для снижения крутящих моментов при управлении кранов;
- краны с подъёмом пробки - для того же, но другим способом;
- краны с обогревом - для застывающих нефтепродуктов;
- пробно-спускные краны - для контроля наличия среды.

Рисунок 5. Конусный кран (игольчатый).
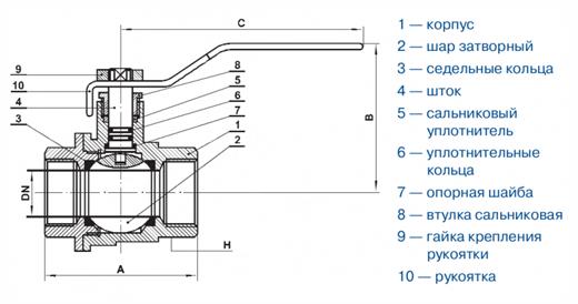
3.2 Запорный клапан
Запорный клапан - запорная и регулирующая арматура, конструктивно выполненная в виде клапана, то есть её запирающий элемент перемещается параллельно оси потока рабочей среды. Иногда ошибочно термин клапан заменяют термином вентиль - это неправильно и в серьёзной технической литературе такая замена не допускается. Как и другие виды запорной арматуры, запорные клапаны применяются для полного перекрытия своего проходного сечения, а, следовательно, потока рабочей среды; то есть запирающий элемент, которым в запорном клапане чаще всего является золотник, в процессе эксплуатации находится в крайних положениях «открыто» или «закрыто». Для регулирования расхода среды путём изменения проходного сечения успешно применяются регулирующие клапаны, также существуют и запорно-регулирующие клапаны, совмещающие эти функции.
Следует заметить, что до 1982 года клапаны, в которых затвор перемещается при помощи резьбовой пары шпиндель - ходовая гайка, назывались вентилями, однако это наименование было упразднено и сейчас клапаном называют и арматуру с резьбовым шпинделем (передающим крутящий момент от привода), и с гладким штоком (передающим поступательное усилие от привода). Клапаны вентильного типа управляются вручную или электроприводом, а клапаны с гладким штоком - гидро-, пневмо- или электромагнитным приводом, а также механическим приводом от других устройств. Запорные клапаны с быстродействующими поршневыми пневматическими приводами входят в состав защитной арматуры и носят название отсечные.
Клапаны широко распространены как запорная арматура, что объясняется возможностью обеспечения хорошей герметизации в запорном органе при сравнительной простоте конструкции. Клапаны применяются для жидких и газообразных сред с широким диапазоном рабочих параметров: давления - от вакуума 5·10−3 мм рт. ст. до 250 МПа, температуры - от -200 до +600 °C. Клапаны обычно используются на трубопроводах относительно небольших диаметров, так как в случае больших размеров приходится иметь дело с существенным возрастанием усилий для управления клапаном и усложнять конструкцию для обеспечения правильной посадки затвора на седло корпуса.
Достоинства и недостатки.
Кроме вышеуказанных достоинств, клапаны обладают и другими, например:
- возможность применения в условиях высоких температур и давлений, вакуума, коррозионных и агрессивных сред;
- сравнительная простота технического обслуживания и ремонта в условиях эксплуатации.
Конструкция клапанов во многом схожа с конструкцией задвижек, но принципиальное её отличие - то, что перемещение золотника совпадает с осью перемещения потока среды, а не перпендикулярно ему, даёт клапанам ряд преимуществ перед задвижками, среди которых:
- малый ход затвора для полного открытия (обычно не более 0,25 номинального диаметра, в то время как у задвижек - не менее диаметра) и, соответственно, малая строительная высота и масса;
- в клапанах гораздо проще, чем в задвижках, обеспечить требуемую герметичность затвора (путём применения уплотнительных колец из различных неметаллических материалов);
- при закрытии и открытии клапана в отличие от задвижки практически исключается трение уплотнения затвора о седло, что существенно уменьшает износ уплотнительных поверхностей;
- возможность применения сильфона в качестве уплотнения арматуры по отношению к внешней среде.
К недостаткам клапанов можно отнести:
- высокое (по сравнению с шаровыми кранами и задвижками) гидравлическое сопротивление, что при больших диаметрах прохода и высоких скоростях среды создаёт большие потери энергии и вызывает необходимость соответственно повышать начальное давление в системе;
- ограничение пределов применения по диаметру, о котором было сказано выше;
- наличие в большинстве конструкций застойных зон, в которых скапливаются механические примеси из рабочей среды, шлам, что приводит к интенсификации процессов коррозии в корпусе арматуры.
Устройство и принцип действия

Рисунок 6. Проходной запорный клапан в разрезе. 1-шпиндель, 2-узел, 3-золотник, 4-корпус.
Корпус (на поясняющем рисунке жёлтого цвета) имеет два патрубка с концами для присоединения к трубопроводу, оно может быть любым известным способом фланцевым, муфтовым, штуцерным (отличия муфтового и штуцерного способа см. стр.32-33), цапковым, приваркой. Внутри корпуса расположено седло, которое в положении «закрыто» перекрывается затвором (золотником ). Шпиндель проходит через сальниковое уплотнение в крышке. В конструкции, изображённой на поясняющем рисунке, ходовая часть запорного органа вынесена за пределы зоны рабочей среды с помощью бугельного узла. Уплотнение может быть и сильфонным, в этом случае вынесение ходового узла не требуется.
Шпиндель передаёт крутящий момент от ручного штурвала(маховика) или механического привода через неподвижную ходовую гайку золотнику, преобразуя его в поступательное движение золотника, в крайнем нижнем положении золотник садится в седло и поток среды перекрывается. Усилие, передаваемое от привода, может быть и поступательным, в этом случае ходовая гайка отсутствует, а вместо шпинделя используется гладкий шток.
Различия в конструкциях
Конструкции уплотнения. По способу герметизации подвижного соединения шпиндель(шток)—крышка, клапаны делятся на сальниковые, сильфонные и мембранные(диафрагмовые).
3.2.1 Сальниковая арматура
Сальниковое устройство или сальниковое уплотнение - один из видов уплотнительных устройств подвижных соединений различных устройств и механизмов. Ввиду простоты своей конструкции это одно из самых распространённых и давно известных уплотнительных устройств. Названия сальниковая набивка, сальник, сальниковый узел и другие сохранились с тех времён, когда для уплотнения в этих устройствах использовалась пропитанная жиром пенька, в современной промышленности применяются другие материалы.
Суть сальникового устройства в том, что на внешней стороне крышки или корпуса в том месте, где через них проходит шток или шпиндель, создаётся сальниковая камера, в которую укладывается уплотнительный материал - сальниковая набивка. При помощи специальных устройств набивка поджимается вдоль оси шпинделя (штока), упираясь в стенки сальниковой камеры и уплотняя набивку. При сжатии набивки в ней создаются усилия, под действием которых она прижимается с одной стороны к стенке сальниковой камеры, а с другой - к цилиндрической поверхности шпинделя (штока). Таким образом, создаётся герметичность, и рабочая среда не проникает за пределы корпуса оборудования. В механизмах малых диаметров поджатие набивки производится накидной , больших - специальной деталью - сальником - при помощи откидных или анкерных болтов с гайками (обычно двух).

Рисунок 7. Кран с сальниковым клапаном.
Сила трения , возникающая между сальниковой набивкой и штоком препятствует последнему совершать необходимые перемещения, а при чрезмерных усилиях затяжки сальника делают их невозможными, поэтому для сальников имеют большое значение конструкторские и технологические решения, обеспечивающие их нормальную работу, среди них:
- материал набивки;
- размеры сальниковой камеры;
- конструкция деталей сальникового узла;
- материал штока (шпинделя), чистота обработки его поверхности и другие.
В некоторых случаях (среди арматуры как правило в регулирующих клапанах) для снижения трения применяются сальники со смазкой, которая подаётся извне через специальную маслёнку, в тяжело нагруженных механизмах применяется орошение штока водой, например в буровых насосах.
3.2.2 Сильфонная арматура
В сильфонной арматуре уплотнение подвижных элементов относительно внешней среды обеспечивается сильфонным узлом. Главным его элементом является сильфон - гофрированная трубка. Металлический сильфон при помощи сварки или пайки соединяется с верхними или нижними кольцами (или деталями другой формы), образуя так называемую сильфонную сборку. Сильфонная сборка своей верхней частью неподвижно и герметично соединяется с корпусными деталями арматуры, а нижней - со штоком или золотником клапана, перекрывая, таким образом возможность выхода рабочей среды во внешнюю. Поступательное перемещение штока для управления золотником происходит внутри сильфона, который может изменять свою длину за счёт деформации гофров.
Сильфонные клапаны используются для работы в таких средах, утечка которых в окружающую среду недопустима (Пример: утечка газа, которая вызывает удушье, отравление, взрыв). Преимущество таких клапанов перед сальниковыми - исключение утечки рабочей среды в атмосферу в пределах срока службы сильфонного узла. Но это преимущество достигается путём существенного усложнения конструкции и соответственно более высокой стоимости клапана. Кроме того, ремонт сильфона клапана при его усталостном разрушении представляет собой сложную операцию по замене сильфонной сборки, поэтому в таких случаях клапан необходимо менять на новый.

Рисунок 8. Кран с сильфонной сборкой
3.2.3 Мембранная арматура
Мембранные клапаны принципиально отличаются от клапанов другой конструкции.
В мембранной арматуре внешнее уплотнение обеспечивается при помощи мембраны, выполняющейся в виде упругого диска из эластичных материалов (резина, фторопласт). Профиль мембраны позволяет в центральной её части осуществлять возвратно-поступательное движение, достаточное для закрывания или открывания запорного или регулирующего органа арматуры. Мембрана устанавливается и зажимается по наружному диаметру между корпусом и крышкой, это обеспечивает герметичность соединения корпусных деталей и одновременно полностью отсекает внутреннюю полость арматуры от внешней среды.
Особенность этих клапанов состоит в том, что диафрагма одновременно может выполнять функцию затвора, перекрывая под действием шпинделя проход рабочей среды через корпус.
Такая конструкция позволяет без применения нержавеющих сталей иметь чугунные клапаны, пригодные для различных агрессивных сред. Это достигается покрытием (футеровкой) внутренних поверхностей корпуса различными коррозионностойкими материалами (фторопласт, резина, полиэтилен, эмали).
Недостатками таких клапанов являются небольшой срок службы мембраны и ограниченные небольшими давлениями и температурами пределы их применения.

Рисунок 9. Мембранный клапан, строение.
Направление потока
По конструкции корпуса и расположению на трубопроводе, связанным с направлением потока рабочей среды, запорные клапаны различаются:
- проходные - в них направление потока среды на входе и выходе одинаковое, но иногда ось выходного патрубка смещена параллельно входному. В таком клапане поток среды в корпусе делает как минимум два поворота на 90°, что приводит к высокому гидросопротивлению и появлению застойных зон в корпусе;
- угловые - в них поток поворачивает на 90°, но один раз, что позволяет снизить гидросопротивление. Существенный недостаток таких клапанов заключается в том, что область их применения ограничивается поворотными участками трубопроводов;
- прямоточные - в них, как и в проходных, направление потока сохраняется, но ось шпинделя расположена не перпендикулярно, а наклонно к оси прохода. Такая конструкция позволяет существенно спрямить поток и уменьшить гидросопротивление, однако при этом увеличивается ход затвора, строительная длина и масса изделия.
Конструкция рабочего органа.
Уплотнительный элемент в клапанах бывают тарельчатыми (золотниковыми) или коническими.
Уплотнительные поверхности тарельчатого затвора могут быть плоскими или конусными, в последнем случае седло в корпусе выполняется в виде фаски. Плоские уплотнения позволяют изготавливать их из различных металлов, сплавов и неметаллических материалов, они хорошо работают в жидких и газообразных средах, не содержащих взвешенных частиц. Конусные уплотнения, металл по металлу, используются для клапанов высоких давлений со взвешенными частицами в рабочей среде.
Конический запорный элемент применяется в клапанах номинальным диаметром не более 25, для номинальных давлений от 16 МПа и выше. Такие клапаны называются игольчатыми. В отличии от игольчатого (конического ) крана, игольчатый запорный элемент клапана расположен соосно потоку рабочей среды, а в игольчатом кране шпиндель и запорный элемент направлен перпендикулярно рабочей среде. Т.е в клапане уплотнительный элемент имеет поступательное движение для перекрытия потока рабочей сети, а в кранах уплотнительный элемент вращается вокруг своей оси для перекрытия.
3.3 Задвижка
Задвижка - трубопроводная арматура, в которой запирающий или регулирующий элемент перемещается перпендикулярно оси потока рабочей среды. Задвижки - очень распространённый тип запорной арматуры. Они широко применяются практически на любых технологических и транспортных трубопроводах диаметрами от 15 до 2000 миллиметров в системах жилищно-коммунального хозяйства, газо- и водоснабжения, нефтепроводах, объектах энергетики и многих других при рабочих давлениях до 25 МПа и температурах до 565 °C[2].
Широкое распространение задвижек объясняется рядом достоинств этих устройств, среди которых:
- сравнительная простота конструкции;
- относительно небольшая строительная длина;
- возможность применения в разнообразных условиях эксплуатации;
- малое гидравлическое сопротивление.
Последнее качество делает задвижки особенно ценными для использования в магистральных трубопроводах, для которых характерно постоянное высокоскоростное движение среды.
К недостаткам задвижек можно отнести:
- большую строительную высоту (особенно для задвижек с выдвижным шпинделем, что обусловлено тем, что ход затвора для полного открытия должен составить не менее одного диаметра прохода;
- значительное время открытия и закрытия;
- изнашивание уплотнительных поверхностей в корпусе и в затворе, сложность их ремонта в процессе эксплуатации.
За редким исключением задвижки не предназначены для регулирования расхода среды, они используются преимущественно в качестве запорной арматуры - запирающий элемент в процессе эксплуатации находится в крайних положениях «открыто» или «закрыто».
Задвижки обычно изготовляются полно проходными, то есть диаметр проходного отверстия арматуры примерно соответствует диаметру трубопровода, на который она устанавливается. Однако в некоторых случаях для уменьшения крутящих моментов, необходимых для управления арматурой, и снижения износа уплотнительных поверхностей, применяются суженные задвижки. Некоторое увеличение гидросопротивления при этом практически не влияет на работу системы, нежелательна установка таких задвижек лишь на магистральных трубопроводах больших диаметров.

Рисунок 10. Детальное устройство задвижки
Наиболее распространено управление задвижкой с помощью штурвала (вручную), также задвижки могут оснащаться электроприводами, гидроприводами и, в редких случаях, пневмоприводами. На задвижках большого диаметра с ручным управлением, как правило, устанавливают редуктор для уменьшения усилий открытия-закрытия.
По характеру движения шпинделя различаются задвижки с выдвижным или не выдвижным (вращаемым) шпинделем. В первом случае при открытии и закрытии задвижки шпиндель совершает поступательное или вращательно-поступательное движение, во втором — только вращательное. Основные различия задвижек — в конструкции запорного органа, по этому признаку задвижки различаются на клиновые, параллельные, шиберные и шланговые.
Устройство и принцип действия

Рисунок 11. Чертёж клиновой задвижки с выдвижным шпинделем в разрезе.
В общем виде конструкция задвижки состоит из корпуса и крышки, образующих полость, в которой находится рабочая среда под давлением и внутри которой помещен затвор (на чертеже справа он клиновой). Корпус имеет два конца для присоединения задвижки к трубопроводу (применяются присоединительные концы фланцевые, муфтовые и под приварку). Внутри корпуса расположены, как правило два седла, параллельно или под углом друг к другу (как на рисунке), к их уплотнительным поверхностям в положении «закрыто» прижимаются уплотнительные поверхности клина . Клин перемещается в плоскости, перпендикулярной оси прохода среды через корпус, при помощи шпинделя или штока. Шпиндель с ходовой гайкой образует резьбовую пару, которая при вращении одного из этих элементов обеспечивает перемещение затвора в нужном направлении. Такое решение (см. поясняющий чертёж) наиболее распространено и применяется при управлении вручную или электроприводом. При использовании гидро- или пневмопривода шток совершает вместе с затвором только поступательное движение. Шпиндель одним концом внутри корпуса соединён с затвором, а другим — проходит через крышку и сальник(который в основном применяется в качестве уплотнительного устройства в задвижках) для соединения с элементом управления задвижкой (в данном случае штурвалом).
Конструкции запорных органов
3.3.1 Виды задвижек:
3.3.1.1 Клиновые задвижки
В клиновых задвижках сёдла в корпусе расположены под небольшим углом друг к другу, а затвор представляет собой устройство в виде клина — жёсткого, упругого или двухдискового, который в положении «закрыто» плотно входит в пространство между сёдлами (см. поясняющий чертёж, клин находится в нижнем положении, между сёдлами). В зависимости от условий эксплуатации выбирается тот или иной вид клина.
3.3.1.2 Жёсткий клин
Жёсткий клин обеспечивает надежную герметичность запорного органа, но для этого требуется повышенная точность обработки для совпадения угла клина с углом между сёдлами корпуса. Недостаток жёсткого клина — опасность заклинивания затвора и невозможность или трудность открытия задвижки в результате колебаний температур рабочей среды, износа или коррозии уплотнительных поверхностей
3.3.1.3 Двухдисковый клин
Такой клин образуется двумя дисками, расположенными под углом друг к другу и жёстко скрепленными между собой. В нём диски имеют возможность само установки относительно сёдел корпуса, поэтому некоторые погрешности, допускаемые при изготовлении сёдел корпуса, не влияют на герметичность в положении «закрыто». Двухдисковый клиновой затвор существенно снижает возможность заклинивания, которое свойственно жёсткому клину, и, несмотря на некоторое усложнение конструкции, имеет ряд других достоинств — малый износ уплотнительных поверхностей, высокая герметичность запорного органа, меньшее усилие, необходимое для закрытия.
Клиновые двухдисковые задвижки, входящие в судовую арматуру называют также клинкетными.
3.3.1.4 Упругий клин
Это модификация двухдискового клина, диски которого связаны между собой упругим элементом, способным изгибаться, обеспечивая плотный контакт между уплотнительными поверхностями в положении «закрыто». В этом затворе снижены возможности само установки дисков по сравнении с двухдисковыми, хотя и сохраняется способность компенсировать некоторые деформации корпуса от нагрузок трубопровода и колебаний температур. Достоинства упругого клина — не требуется трудоёмкая пригонка затвора по корпусу (как для жёсткого клина) и конструкция более простая, чем у двухдискового. Таким образом, упругий клин в определённой степени сглаживает недостатки и сочетает достоинства двух других видов клиновых затворов.

Рисунок 12. Шиберная задвижка с электроприводом.
3.3.2. Параллельные задвижки
В параллельных задвижках уплотнительные поверхности двух сёдел в корпусе расположены параллельно друг другу. Затвор состоит из двух дисков, которые в положении «закрыто» при помощи специального клинового грибка прижимаются к сёдлам, перекрывая проход рабочей среде через корпус.
3.3.3. Шиберная задвижка
Является однодисковой разновидностью параллельной задвижки, в которой затвор называется шиберным односторонним. Такие задвижки применяются в тех случаях, когда допускается одностороннее направление потока рабочей среды и не требуется высокая герметичность запорного органа. Они предназначены для установки в качестве запорных устройств на трубопроводах, транспортирующих канализационные стоки, шламы, пульпы и другие, загрязнённые механическими примесями среды. Иногда затвор выполняется ножевым для разрушения частиц в рабочей среде, в этом случае задвижки называются шиберными ножевыми.

Рисунок 13. Чертёж шланговой задвижки в разрезе.
3.3.4 Шланговая задвижка
Задвижки с таким запорным органом принципиально отличаются от других конструкций. Корпус не имеет сёдел, а затвор — уплотнительных поверхностей. Проход среды ведётся через эластичный шланг (патрубок), вставленный в корпус и полностью изолирующий металлические детали конструкции от рабочей среды. Для перекрытия прохода шланг полностью пережимается под воздействием шпинделя (штока), поэтому такие устройства называются шланговыми, задвижками их назвали потому, что шпиндель для управления арматурой перемещается перпендикулярно к оси прохода среды, то есть работает по принципу задвижки.
Шланговые задвижки предназначены для трубопроводов, транспортирующих вязкие, пульпообразные и другие подобные среды, а также слабоагрессивные и агрессивные жидкости. Шланги изготавливают из различных марок резин, которые обеспечивают работу задвижек при давлениях до 1,6 МПа и температурах до 110 °C.
Расположение ходового узла
Большое значение для работы и области применения задвижек имеет расположение ходового узла — резьбового соединения шпиндель-гайка. Он может быть расположен внутри задвижки в рабочей среде или вне полости корпуса.
3.3.5 Задвижка с выдвижным шпинделем.
В такой конструкции резьба шпинделя и ходовая гайка расположены снаружи корпуса арматуры. Шпиндель нижним концом соединён с затвором и при вращении ходовой гайки для открытия задвижки совершает вместе с затвором только поступательное перемещение, при этом верхний конец шпинделя выдвигается на величину хода затвора. Для возможности перемещения шпинделя ходовая гайка поднята над верхней частью крышки (то есть над сальником) примерно на величину хода затвора в конструкции, которую называют бугельным узлом.
Достоинствами такой конструкции являются отсутствие вредного воздействия рабочей среды на ходовой узел и свободный доступ для его технического обслуживания, а следовательно меньший износ сальникового уплотнения и более высокая надёжность резьбовой пары и сальника.
Недостатком таких задвижек является увеличение строительной высоты и массы за счёт выхода шпинделя из крышки не менее, чем на диаметр прохода и необходимость по этой причине при монтаже оставлять свободное место для выхода шпинделя.
3.3.6. Задвижка с не выдвижным шпинделем.
В этом случае ходовая резьба находится внутри полости задвижки и при открывании шпиндель не выдвигается из крышки, сохраняя своё первоначальное положение по высоте. Ходовая гайка в этих задвижках соединена с затвором и при вращении шпинделя для открытия прохода как бы наворачивается на него, увлекая за собой затвор. В задвижках с не выдвижным шпинделем ходовой узел погружён в рабочую среду и поэтому подвержен действию коррозии и абразивных частиц в рабочей среде, к нему закрыт доступ и отсутствует возможность технического обслуживания во время эксплуатации, что приводит к снижению надёжности работы ходового и сальникового узлов.
В связи с этим такие задвижки имеют ограниченное применение — для трубопроводов, транспортирующих минеральные масла, нефть, воду, не засорённую твёрдыми примесями и не имеющими коррозионных свойств. Поскольку в задвижках с не выдвижным шпинделем затруднены наблюдение и уход за ходовым узлом, они не рекомендуются для ответственных объектов.
Достоинством такой конструкции является меньшая строительная высота, что делает целесообразным их применение для подземных коммуникаций, колодцев, нефтяных скважин и т.д.
Материалы и способы изготовления
Уплотнительные поверхности задвижек изготавливаются без колец, с кольцами из латуни, фторопласта, с наплавкой из коррозионностойкой стали, из резины (в клиновых задвижках ей может покрываться клин, а в шланговых из неё изготавливается пережимной шланг).
Задвижки с корпусами из чугуна и алюминиевого сплава выполняются при помощи литья. Этим же способом изготавливаются и стальные задвижки, но некоторые из них, а также задвижки из титановых сплавов изготавливаются методом сварки заготовок, полученных штамповкой из листового проката. Такие задвижки называют штампосварными. По своим характеристикам, эксплуатационным и прочностным, они не уступают литым задвижкам, а наоборот, детали корпусов и крышек таких задвижек изготавливаются из материала более прочного и тщательно проконтролированного, качество которого выше, чем литьё. При этом технология сварки и методы контроля сварных соединений обеспечивают высокое качество корпусных деталей, позволяющее применять такие задвижки на ответственных объектах, включая атомную энергетику.
3.4 Дисковый затвор (заслонка)
Дисковый затвор — тип трубопроводной арматуры, в котором запирающий или регулирующий элемент имеет форму диска, поворачивающегося вокруг оси, перпендикулярной или расположенной под углом к направлению потока рабочей среды. Также эти устройства называют заслонками, поворотными затворами, герметичными клапанами, гермоклапанами. Наиболее часто такая арматура применяется при больших диаметрах трубопроводов, малых давлениях среды и пониженных требованиях к герметичности рабочего органа, в основном в качестве запорной арматуры.
В дисковых затворах запирающий элемент, то есть затвор, имеет форму диска, который может перекрывать проход рабочей среде через кольцевое седло в корпусе путём поворота (как правило, на 90°) затвора вокруг оси, перпендикулярной направлению потока среды, при этом ось вращения диска может являться его собственной осью (осевые дисковые затворы) или же не совпадать с осью (эксцентриковые дисковые затворы). В связи с некоторой схожестью формы затвора с бабочкой, в англоязычных странах дисковые затворы носят название butterfly valve.
Применение:
- для систем водо- и теплоснабжения;
- вентиляции и кондиционирования;
- газоснабжения и газораспределения;
- на спец. среды (абразивные среды, слабоагрессивные среды, бензин, морская вода и т.д.);
- для систем пожаротушения.
Достоинства и недостатки.
Дисковые затворы, как и шаровые краны, являются одними из самых современных и прогрессивных типов арматуры, обладающий многими важными достоинствами, среди которых:
- малые строительные длина и масса;
- простота конструкции, малое число деталей;
- относительная простота ремонта, возможность быстрой замены элементов уплотнения;
- возможность применения для больших диаметров трубопроводов.
Но имеются и недостатки, например:
- в положении «открыто» диск располагается в проходе корпуса, что ухудшает гидравлические характеристики и делает весьма затруднённой очистку трубопровода при помощи механических устройств;
- относительно небольшие (у кранов шаровых и задвижек моменты еще больше) крутящие моменты для управления затворами;
- Класс герметичности "А" достигается не только на затворах с мягким седловым уплотнением, современные затворы с ламинарным уплотнением «металл по металлу» также имеют класс герметичности "А", в том числе при тестировании газом.
Устройство и принцип действия

Рис. 14. Небольшой затвор с плоским диском.
Дисковый затвор представляет собой короткий цилиндрический корпус (1), через который протекает рабочая среда. Внутри корпуса расположена подвижная часть, диск (3), имеющий возможность вращаться вокруг своей оси и таким способом, прижимаясь к уплотнительной поверхности корпуса (2), которая на поясняющем изображении выполнена с резиновым уплотнительным кольцом, перекрывать проход рабочей среды.
Типы дисковых затворов:
- поворотный, тип butterfly;
- поворотный затвор с двойным эксцентриситетом (2-х эксцентриковый);
- 3-х эксцентриковый дисковый поворотный затвор;
- 4-х эксцентриковый дисковый поворотный затвор.
Различия в конструкциях.
Затвором (подвижной частью запорного органа) этих устройств может быть плоский диск или двояковыпуклый (линзовый), чечевичного сечения.
Конструкция дисковых затворов даёт возможность применения их на различных рабочих средах с обеспечением защиты от коррозии повышенного износа внутренних поверхностей корпуса и диска, для чего используются различные способы. Самым простым из них является изготовление этих деталей из нержавеющих сталей с уплотнением резиновым кольцом (если защита не требуется, детали изготавливаются из углеродистой или легированной стали, корпуса также из чугуна). Существуют также конструкции, внутренние полости которых защищены химически- и износостойкими покрытиями в виде эластомерных или резиновых вкладышей в корпусе и резиновых или полимерных покрытий диска, что заменяет собой дополнительные прокладки.
Присоединение затвора к трубопроводу чаще всего стяжное, то есть отверстия по краю корпуса арматуры пронизывают шпильки от одного фланца трубопровода до другого, что идеально подходит к конструкции устройства, в редких случаях затворы изготавливаются с собственными фланцами для соединения с обратными фланцами трубопровода.
Управление дисковыми затворами сходно с управлением шаровыми кранами, так как эти типы арматуры требуют для полного открытия поворота запирающего элемента на 90°. Оно осуществляется вручную (на больших диаметрах с маховиком и редуктором, или механизировано, с помощью однооборотных или (для больших диаметров) многооборотных электроприводов, а также поршневых пневмо- и гидроприводов. Разновидностью дисковых затворов являются герметичные клапаны, применяемые для установки на трубопроводы малых диаметров для небольших давлений и на воздуховоды, также с небольшими давлениями.
4. Разновидности арматуры по присоединению
Трубопроводная арматура фланцевая, муфтовая, цапковая, штуцерная, под приварку.
Один из весомых поводов для классификации ─ это способ присоединения арматуры к трубопроводу, емкости или оборудованию.
Если в основу классификации положить конструктивное исполнение частей, отвечающих за присоединение, то множество технических устройств, объединенных термином «трубопроводная арматура», распадется на два больших подмножества с говорящими названиями ─ арматура трубопроводная фланцевая и бесфланцевая арматура. Прочность и герметичность присоединения первой обеспечивает наличие фланцев; присоединение второй осуществляется без их помощи. В состав «отряда» бесфланцевой арматуры входят муфтовая, цапковая, штуцерная арматура, арматура под приварку и некоторые другие.
При делении трубопроводной арматуры по способу присоединения можно исходить и из другого признака: какое ─ разъемное или неразъемное ─ соединение образуется. В этом случае почти в одиночестве (есть еще присоединение пайкой) оказывается образующая неразъемные соединения арматура под приварку. Все остальные соединения─ разъемные. Значительная часть из них ─ муфтовые, штуцерные, цапковые ─ являются резьбовыми.
4.1 Фланцевое соединение арматуры

Рисунок 14. Фланцевое соединение арматуры
Соединения с применением фланцев широко применяются в различных направлениях технологий. Повсеместное распространение получило фланцевое соединение трубопроводов и арматуры.
Слово «фланец» пришло в русский язык из немецкого языка вместе с самим фланцем, а не было присвоено на основании каких-то аналогий. В немецком существительное Flansch обозначает ровно то же самое, что и производное от него русское слово «фланец», ─ плоскую металлическую пластину на конце трубы с отверстиями для резьбового крепежа (болтов или шпилек с гайками). Привычнее, когда эта пластина круглая, но одним диском форма фланцев не ограничивается. Используются, например, квадратные и треугольные фланцы. Но круглые изготовить легче, поэтому применение прямоугольных или треугольных фланцев можно оправдать действительно весомыми причинами.
Материал, типы и особенности конструкции фланцев определяются условным диаметром, давлением рабочей среды и целым рядом других факторов.
Для изготовления фланцев трубопроводной арматуры используют серый и ковкий чугун, разные сорта стали.
Фланцы из ковкого чугуна рассчитаны на более высокое давление и широкий диапазон температур, чем фланцы, сделанные из серого чугуна. Еще более стойкими к воздействию этих факторов являются литые стальные фланцы. Стальные приварные, столь же легко перенося высокие температуры, уступают литым фланцам в максимально допустимом давлении.
Особенностями конструкции фланцев может быть наличие выступов, фасок, шипов, кольцевых выборок и т. д.
Распространенность фланцевых соединений трубопроводной арматуры обусловлена множеством присущих им достоинств. Самое очевидное из них ─ возможность многократного монтажа и демонтажа. Соблазн добавить к существительному «монтаж» прилагательное «легкий» несколько убавляется, если вспомнить о том, сколько болтов потребуется открутить и закрутить при разборке и стыковке фланцев больших диаметров (фланцевые соединения обычно используют при диаметре труб от 50 мм). Хотя и в этом случае трудоемкость монтажных работ не выйдет за пределы разумного.
Фланцевые соединения отличаются прочностью и надежностью, что позволяет использовать их для комплектации трубопроводных систем, работающих под высоким давлением. При соблюдении ряда условий фланцевые соединения обеспечивают очень хорошую герметичность. Для этого стыкуемые фланцы должны иметь аналогичные, не выходящие за рамки допустимой погрешности, присоединительные размеры. Еще одно из условий ─ обязательная периодическая подтяжка стыков, позволяющая поддерживать на должном уровне «хватку» болтовых соединений. Это особенно важно при постоянном воздействии на них механических вибраций или наличии существенных колебаний температуры и влажности окружающей среды. И чем больше диаметр трубопровода, тем это актуальнее, ведь по мере его увеличения усилие на фланцы возрастает. Герметичность фланцевых соединений во многом зависит от уплотнительной способности устанавливаемых между фланцами прокладок.
Нельзя сбрасывать со счетов деформации. Причем фланцы, выполненные из разных материалов, подвержены им в неодинаковой степени, поэтому материал, из которого он сделан, является важнейшим параметром фланца. Так, пластичные стальные фланцы деформируются легче, чем выполненные из более хрупкого, но при этом гораздо лучше держащего форму чугуна.
Недостатки фланцевой арматуры являются продолжением ее достоинств. Высокая прочность оборачивается значительными габаритными размерами и массой, которые, в свою очередь, означают повышенный расход металла (при изготовлении фланцев крупных размеров приходится использовать толстый металлический лист или круглые профили большого диаметра) и трудоемкость производства.
4.2 Арматура под приварку

Рисунок 15. Соединение крана под приварку.
К приварке арматуры прибегают, когда надежность и герметичность других видов соединений признается неудовлетворительной. Особенно востребована сварка при устройстве трубопроводных систем, в которых рабочей средой являются токсичные, ядовитые или радиоактивные жидкости и газы. В этом случае сварочное соединение, при правильном исполнении обеспечивающее 100%-ую герметичность, может оказаться оптимальным, а зачастую и единственно приемлемым решением. Важно только, чтобы такой участок системы не нуждался в частом демонтаже оборудования, выполнение которого всякий раз будет приводить к полному разрушению сварных соединений.
Благодаря сварке, объединяющей фрагменты трубопроводной системы в единое целое, удается обеспечить гармонию, или, говоря техническим языком, структурное соответствие между всеми ее элементами ─ трубами и трубопроводной арматурой. Главное, чтобы из-за различий механических свойств сварного соединения и других составляющих трубопроводной системы оно не стало ее слабым звеном.
Сварные соединения могут быть выполнены в раструб и встык. В первом случае сварочный шов располагается на внешней стороне трубы. Такой вариант обычно используется для стальной арматуры сравнительно небольшого диаметра, монтируемой в трубопроводах, работающих при высоком давлении и температуре рабочей среды.
Сварка внахлест (внахлестку; сварка нахлесточных соединений) представляет собой такой сварочный процесс, при котором соединяются два (возможно и большее их количество) листа путем полного либо частичного наложения одного на другой.

Рисунок 16. Запорный клапан с соединением под приварку «встык»-слева,«внахлест»- справа.
Во втором случае соединение может дополняться подкладным кольцом, исключающим перекос соединяемых деталей. Именно такие, отличающиеся надежностью и абсолютной герметичностью соединения используются при монтаже трубопроводных систем опасных производственных объектов, например, энергоблоков атомных электростанций.
Важными достоинствами сварных соединений, особенно по сравнению с фланцевыми, являются минимальный вес, компактность и экономия пространства.
При выполнении приварки трубопроводной арматуры к трубопроводу или емкости в обязательном порядке необходимо разобрать изделие, так как металл при сварке нагревается, что может привести к расплавлению полимерных уплотнителей.
Еще один способ присоединения арматуры ─ пайка, которую применяют для медных труб с небольшим диаметром. Конец трубопровода, обработанный припоем, вставляется в выполненную в патрубке проточку.
4.3 Резьбовая арматура.
Резьбовая арматура делится на муфтовую и штуцерную.
4.3.1 Муфтовая арматура.

Рисунок 17. Кран с муфтовым присоединением
Одним из наиболее распространенных в технике, является муфтовое соединение арматуры. Муфтовая арматура- это арматура, имеющая присоединительные патрубки с внутренней резьбой.
Его применяют для различных типов арматуры малого и среднего диаметра, работающих при низких и средних давлениях, корпус которых изготовлен из чугуна или сплавов цветных металлов. Если давление высокое, то предпочтительнее использовать цапковую арматуру.
В присоединительных патрубках муфтовой арматуры резьба находится с внутренней стороны. Как правило, это трубная резьба ─ дюймовая резьба с мелким шагом. Ее формируют различными способами ─ накаткой, нарезкой, штамповкой. Важно, что при мелком шаге резьбы высота зубьев не зависит от диаметра трубопровода. Снаружи присоединительные концы оформляют в виде шестигранника, чтобы было удобно пользоваться ключом.
Слово «муфта» пришло в русский язык из немецкого, а, возможно, из голландского языка, где mouw означает рукав. Муфта, как и клапан, - пример того, как портняжное дело и производство трубопроводной арматуры используют каждый в своей специальной терминологии одинаковые по звучанию, но несущие разную смысловую нагрузку слова. В технике муфтой называют не рукав, а короткую металлическую трубку, внутри которого происходит процесс транспортировки рабочей среды.
Мелкая резьба муфтового соединения плюс использование специальных вязких смазок, льняных прядей или фторопластового уплотнительного материала (ленты ФУМ) гарантируют его высокую герметичность. Муфтовое соединение не требует использования дополнительных крепежных деталей (например, болтов или шпилек, как во фланцевом соединении). Но нельзя не учитывать, что наворачивание муфты на резьбу с уплотнением требует немалых усилий, тем больших, чем больше диаметр трубопровода.
4.3.2 Штуцерная арматура.
Рисунок 18. Штуцерная арматура.
Штуцерная арматура - это арматура, имеющая присоединительные патрубки с внешней резьбой. В этом и есть отличие от муфтовой арматуры.
Немецкое происхождение термина «штуцер» от глагола stutzen (подрезать, нарезать) выдает даже его звучание. Так из-за наличия нарезного ствола именовали использовавшиеся для вооружения армий вплоть до XIX столетия мушкеты. В современной технике это существительное применяется для определения короткого отрезка трубы (другими словами ─ втулки) с резьбой на обоих концах, служащего для присоединения труб и трубопроводной арматуры к агрегатам, установкам и резервуарам. В штуцерном соединении присоединительный конец арматуры с наружной резьбой посредством накидной гайки подтягивается к трубопроводу. Его используют для арматуры малого и сверхмалого (с номинальным диаметром до 5,0 мм) диаметров. Как правило, это лабораторная или иная специальная арматура. Например, редукторы, устанавливаемые на баллонах со сжатым газом. С помощью штуцерного соединения в трубопроводные сети «вживляются» различные контрольно-измерительные приборы (КИП), монтируются испарители, термостаты, многие виды оборудования, входящие в состав технологических линий химического производства.
4.4 Цапковая арматура

Рисунок 18. Арматура с цапковым соединением.
Термин «цапковое соединение» вошел в широкий обиход в конце XIX столетия. Его главные атрибуты для трубопроводной арматуры ─ присоединительные патрубки с наружной резьбой и наличия буртика. Конец трубопровода с буртиком накидной гайкой прижимается к торцу патрубка арматуры. Цапковое соединение используется для арматуры высокого давления небольших размеров, в частности, приборов КИП. Оно эффективно при ввинчивании арматуры в корпус сосудов, аппаратов, установок или машин. Его герметичность обеспечивается наличием прокладок и специальными смазками.
Всем резьбовым соединениям свойственны такие достоинства как минимальное количество присоединительных элементов, малая металлоемкость и, соответственно, небольшая масса, технологичность. Эффективный монтаж резьбовых соединений требует совпадения внутренней и наружной резьбы, использование мягких или вязких материалов для уплотнения. Но при этом следует учитывать, что нарезка резьбы уменьшает толщину стенки трубы, поэтому такой тип соединения плохо подходит для тонкостенных труб.
Функциональные возможности, работоспособность и надежность трубопроводной системы определяется не только параметрами входящей в ее состав арматуры, но и тем, насколько качественно выполнено соединение арматуры, выбору и выполнению которого всегда следует уделять повышенное внимание.
